- Location: Mechelen, Belgium
- Program: Residential, Landscaping, Horeca
- Area: 40.000 m²
- Year: 2021 – …
- Status: In progress
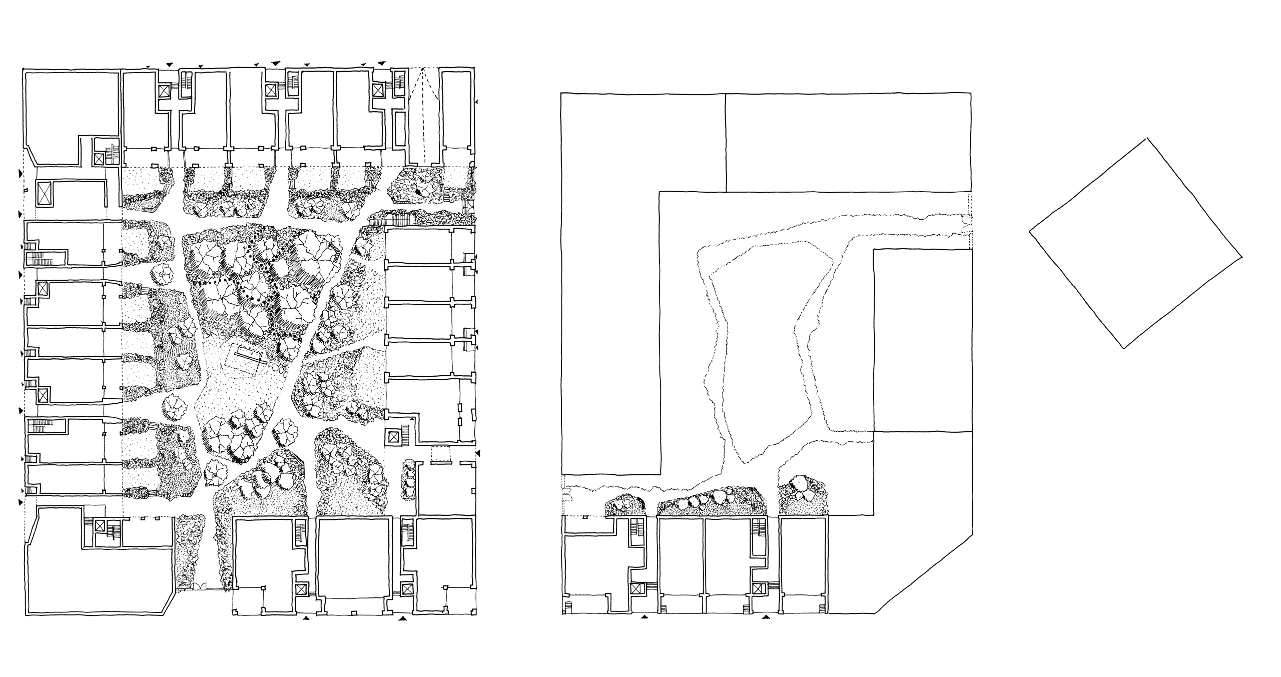
In the context of Mechelen’s urban renewal efforts, the Keerdokkaai project is a significant architectural undertaking, strategically located between the Keerdok and the city’s ring road. Covering more than 2 hectares, it addresses the area’s vacancy problem with largely empty retail spaces.
As part of Mechelen’s broader urban development strategy, Keerdokkaai plays a key role in creating a modern urban district adjacent to the historic core. The design consists of two substantial building blocks, each more than 3,000 m², surrounding extensive communal green spaces. A 12-story tower to the south adds a vertical element to the skyline, while approximately 8,500 m² of new public space will enhance the surrounding area.
The residential component offers a variety of housing options, including townhouses with private gardens for families and a mix of 1, 2, and 3-bedroom apartments for different segments. The goal is to create a vibrant and inclusive community that reflects Mechelen’s demographic diversity.
Sustainability is an integral part of the project, with measures such as geo- and thermo-energy systems, rainwater and greywater harvesting, and minimizing the building coverage to around 40%. These initiatives aim to reduce environmental impact and set a precedent for future urban development.
In collaboration with Beel Architecten














